●希望物件への、ご質問・内覧希望の方はご相談コーナーへクリック!

貸  家(高松3丁目)
練馬区高松3-18-10
都営大江戸線「光が丘駅」徒歩14分
礼金 1ヶ月
敷金 1ヶ月
契約期間 2年
更新 可
管理費 0円
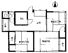
構造 木造平屋建
設備 電気・上下水道・PG・水洗トイレ
その他 長期・臨時いずれも可。
*参考間取です。
     
●地図検索で場所の確認●

賃貸物件一覧表へ戻ります